Adelaide
Single Storey
1 Master Bed
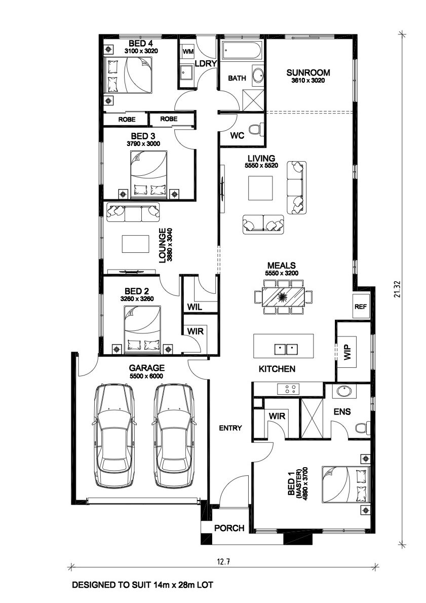
This well-designed single-storey home offers a perfect balance of space, comfort, and functionality for modern family living. The open-plan kitchen, meals, and living area forms the heart of the home, flowing effortlessly to a covered sunroom ideal for entertaining. A private master bedroom with walk-in robe and ensuite is positioned at the front, while three additional bedrooms are zoned around a separate lounge. With a double garage, ample storage, and practical inclusions, this home suits growing families and contemporary lifestyles.
Key Information
4
3
2
2

Dimensions
Land
16 m x 30 m
Home
Total area
Home width
Home length
Min. lot width
Min. lot length
–
14.45 m
12.57 m
16 m
30 m
Room
Lounge
Living
Dining
Sunroom
Master Bed 1
Bed 2
Bed 3
Bed 4
Garage
3.88 x 3.04 m
5.55 x 5.52 m
5.55 x 3.20 m
3.61 x 3.02 m
4.89 x 3.70 m
3.26 x 3.26 m
3.79 x 3.00 m
3.10 x 3.02 m
5.50 x 6.00 m
Enquire about Adelaide

