Forresters Road Donnybrook
Sold
Single Storey
1 Master
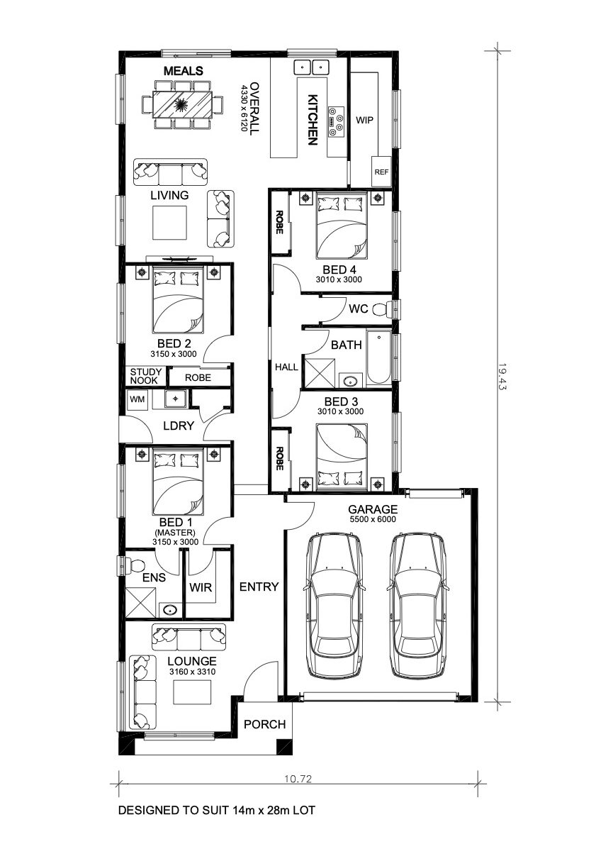
With four bedrooms, two living areas, a study nook, and a walk-in pantry, the Forresters is built for modern Aussie living. It’s flexible, functional, and full of thoughtful touches.
Key Information
4
2
2
2

Dimensions
Land
14 m x 28 m
Home
Total area
Home width
Home length
Min. lot width
Min. lot length
–
10.72 m
19.43 m
14 m
28 m
Room
Lounge
Overall
Master Bed 1
Bed 2
Bed 3
Bed 4
Garage
3.16 x 3.30 m
4.33 x 6.12 m
3.15 x 3.0 m
3.15 x 3.0 m
3.01 x 3.0 m
3.01 x 3.0 m
5.5 x 6.0 m
Enquire about this House & Land Package

